Canal Abierto UV

¿Qué es?

El sistema de canal abierto es fácil de operar y funciona en forma gravitacional. La esencia de éste es conducir el flujo de agua a tratar a través de una cámara de irradiación o canal de contacto, en cuyo interior se ubica una serie de módulos de lámparas generadoras de luz UV.

El sistema de canal abierto es aplicable tanto para aguas limpias como servidas para caudales superiores a 30 m3/h.

Biolight S.A. suministra el sistema completo en acero inoxidable 304/316L para ser instalado en un canal construido en concreto (o fibra de vidrio) por el cliente (bajo especificaciones de Biolight).

El sistema de canal abierto se diseña y fabrica a medida. Entrega una dosis mínima de 35 mJ/cm2, considerando que el agua posee una transmitancia mínima de 50% (medida a 254nm), un nivel máximo de sólidos en suspensión de 35 ppm y una carga de coliformes de 10 exp7 NMP/100 ml.

UV CALC

Los Canales Abiertos UV son calculados utilizando el programa de Cálculo UVCalc®, desarrollado por el Prof. James Bolton de la Bolton Photoscience de Canada. Lo que permite diseñar estos sistemas de manera muy precisa para que cumplan con el objetivo de desinfectar los caudales de agua requeridos, independientemente que estos sean limpios o no, ya que esta tecnología incorpora en el cálculo la transmitancia UV (%TUV: que es la transparencia del agua a la luz UV de 254 nm).

Parámetros de diseño

– Caudal a tratar.
– Dosis germicida requerida.
– Caudal peak instantáneo del agua a tratar.
– Porcentaje de transmitancia del agua, medido a 254nm.
– Contenido de sólidos en suspensión.
– En aguas servidas, el contenido de coliformes fecales del efluente.
– Objetivo final del agua a utilizar.

Componentes del sistema

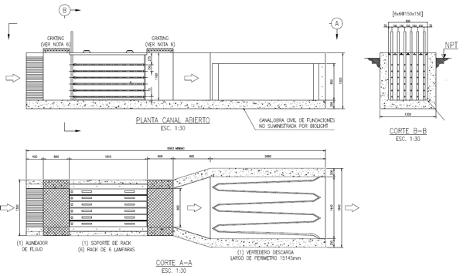
El Sistema completo consta de: Canal abierto construido en concreto, alineador de flujo, Cámara de irradiación UV y vertedero de descarga.

1. El flujo de agua a tratar ingresa por el Alineador de flujo® ubicado a la entrada. Este dispositivo ordena el flujo de agua, a fin de eliminar torbellinos y turbulencias y lograr un perfil hidráulico adecuado para el tratamiento UV.

2. Posteriormente, el agua ingresará a la Cámaras de irradiación UV, donde se encuentran las lámparas UV.

3. Finalmente, el caudal de agua será descargado a través de un vertedero, cuyo diseño permitirá mantener en todo momento las lámparas UV sumergidas y mantener el nivel de agua dentro de rangos controlados, frente a fluctuaciones del caudal de agua.

4. El cliente deberá implementar una estructura techada que cubra el canal con paredes en la zona donde se instalen los tableros eléctricos y estabilizadores de voltaje.

Alineador de flujo® : INAPI, Patente en trámite N° 201200666

Aplicaciones

  • Filtración previa a la desinfección UV de aguas servidas.
  • Filtración previa a desinfección UV de afluentes / efluentes en pisciculturas y hatcheries.
  • Filtración de efluentes industriales.
  • Filtración previa a la desinfección UV de agua de riego en invernaderos, hidroponía y riego por goteo.
  • Filtración en procesos con recirculación de agua (packing, selección de fruta, etc).